+7 (800) 350-85-65*

*Звонок по РФ бесплатный

Ваш регион:

Септик Топас 5 в Протвино

Розничная цена:

181 700 руб.

Цена Топас-С 5:

147 420 руб.

Цена Топас 5:

163 530 руб.

Купить в кредит
  • Стоимость доставки до 150 км от Протвино -
    6 000 руб.
  • Стоимость доставки свыше 150 км от Протвино - 30 руб / км.

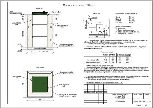
Технические характеристики Топас 5

  • Количество пользователей: 5
  • Залповый сброс: 220 л
  • Производительность: 1 м3/сут
  • Максимальная глубина врезки подводящей трубы: 85 м
  • Потребляемая энергия: 1.5 кВт/сут
  • Вес: 280 кг
  • Габариты: 1.1x1.2x2.5 м
  • Описание

  • Цены на Монтаж

  • Модификации

  • Документация

  • Монтажные схемы

  • Отвод сточных вод

  • Выполненные монтажи

  • Доставка и оплата

Описание модели

Топас-5 – это автономная канализационная система способная обслуживать до 5 человек и обеспечивает поэтапное очищение стоков от загрязнений со степенью очистки до 98%.

Отличные эксплуатационные характеристики этой модели делают ее оптимальным вариантом для обустройства канализации на дачных участках.

  • Септик Топас 5 способен обработать порядка кубометра в сутки, и принять 220 литров стоков, сброшенных одновременно (так называемый залповый сброс). Такие характеристики позволяют беспроблемно эксплуатировать 2 раковины, унитаз и душ.
  • Благодаря эффективной системе механической и биологической очистки Топас 5 полностью избавляет вас от неприятных запахов, в том числе, и при проведении техобслуживания. Результатом работы септика, кроме очищенных стоков, является стабилизированный ил, откачиваемый из устройства дренажным насосом и впоследствии используемый в качестве удобрения.
  • Отвод воды в этой модели выполняется самотеком в дренажный колодец, что накладывает некоторые ограничения по установке устройства. Topas 5 не рекомендован для использования на участках с высоким уровнем грунтовых вод, так как это может привести к обратному вбросу. В подобных случаях мы предлагаем приобрести модификацию «Топас 5 Пр» с теми же основными характеристиками, но принудительным водоотводом.
  • Корпус установки изготавливается из полипропилена, устойчивого к агрессивным соединениям, воздействию окружающей среды и нагрузкам, что обеспечивает 50-летний срок службы устройства. Материал изготовления септика обуславливает и его небольшой вес в 220 кг, позволяющий значительно упростить и ускорить монтажные работы.

Немаловажным преимуществом этой модели автономной канализации от «Топал-Эко» является ее экономичность. Цена септика «Топас 5» вполне доступна, а расходы на эксплуатацию и вовсе невелики. Установка не требует вызова илососа, дополнительных расходных материалов и потребляет всего 1,5 кВт/сут.

Варианты отвода сточных вод

Дренажный способ отвода водостоков

Накопительный резервуар
для отвода сточных вод

Отведение очищенной воды из “Топас”
в промежуточный (смотровой) колодец

Отвод в водоем
с установленным УФ блоком

Подробнее о вариантах отвода сточных вод

Доставка

  1. Доставка по Москве и всей Московской области осуществляется внутренними логистическими силами компании.
  2. Сроки доставки — от 1 дня после заказа септика.
  3. Цены на доставку:
    • по Москве бесплатно,
    • до 100 км от МКАД – 5500 руб., далее 45 руб. за километр,
    • за пределы Московской Области - по согласованию с менеджером.

Оплата

Оплата за автономную канализацию и монтажные работы возможна несколькими способами.

  1. Наличными в офисе или у вас на участке.
  2. По счету от юридического лица
  3. QR -кодом - выездная касса.

Гарантии

  1. Гарантия на корпус очистного сооружения – 10 лет
  2. Гарантия на компрессорное оборудование – 3 года

Видео: все, что Вы хотели знать о Топас

Остались вопросы? Свяжитесь с нами!

Мы всегда готовы бесплатно проконсультировать по вопросам, связанным с продукцией Топас, а также помочь с выбором оптимальной модели септика для решения ваших задач.

Подберите септик
и получите

скидку 10%

Сэкономьте время и деньги!

Подобрать

Подбор септика + скидка